Los termostatos de bobina de ventilador digital HTW-61-FC003 / T5000 LCD están diseñados para controlar la calefacción, la refrigeración o la unidad de aire acondicionado durante todo el año en instalaciones comerciales, industriales y residenciales. La aplicación típica incluye el control de unidades de fan coils, acondicionadores de aire de terminales empaquetados y equipos combinados de calefacción y enfriamiento. Como parte del sistema que consiste en una válvula de dos o tres vías y un ventilador de voltaje de línea de varias velocidades.
Estas funciones del termostato de diseño estético con pantalla de cristal líquido retroiluminado (LCD); un atractivo color blanco en un tamaño compacto complementa cualquier decoración. El termostato no requiere ninguna batería de respaldo como punto de ajuste y otros parámetros se almacenan en la memoria no volátil. La operación intuitiva hace que el termostato sea muy fácil de usar.
HTW-61-FC003.T5000 Fan Coil Thermostat.pdf
>> Resumen
Los termostatos de bobina de ventilador digital HTW-61-FC003 / T5000 LCD están diseñados para controlar la calefacción, la refrigeración o la unidad de aire acondicionado durante todo el año en instalaciones comerciales, industriales y residenciales. La aplicación típica incluye el control de unidades de fan coils, acondicionadores de aire de terminales empaquetados y equipos combinados de calefacción y enfriamiento. Como parte del sistema que consiste en una válvula de dos o tres vías y un ventilador de voltaje de línea de varias velocidades.
Estas funciones del termostato de diseño estético con pantalla de cristal líquido retroiluminado (LCD); un atractivo color blanco en un tamaño compacto complementa cualquier decoración. El termostato no requiere ninguna batería de respaldo como punto de ajuste y otros parámetros se almacenan en la memoria no volátil. La operación intuitiva hace que el termostato sea muy fácil de usar.
>> Características y Beneficios
Backlit Liquid Crystal Display (LCD) | Industrial Standard Graphical Symbol to eliminate native language interface Offer Easy-to-Read Real-time control status of the environment, Graphical messages with constant backlight that brightens during user interaction |
5 Function Key | Easy-to-Use Interface Keys allow for easy commissioning and adjustment All-in-One location function keys, Simplified user to change the setpoint and parameter Molded Industrial Standard Graphical Symbol |
Appearance | Attractively-Style Twin-Ring Streamline ABS Plastic Cover and Base All-in-One Enclosure Design without Protrusion of Power Circuit |
Energy Saving | Features with Unoccupied Function Requires no batteries; EEPROM retains the last events and parameter settings after a loss of power |
Installation, Service and Maintenance | Universal Mounting with Standard Wall Box Quick Replacement to reduce to Downtime of Service Maintenance |
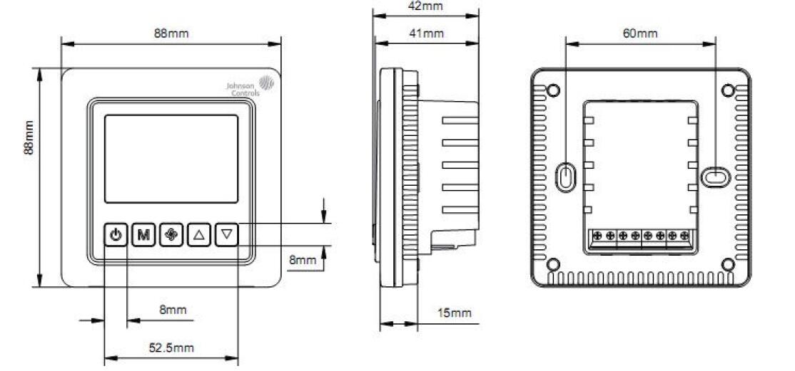
>> Dimensiones

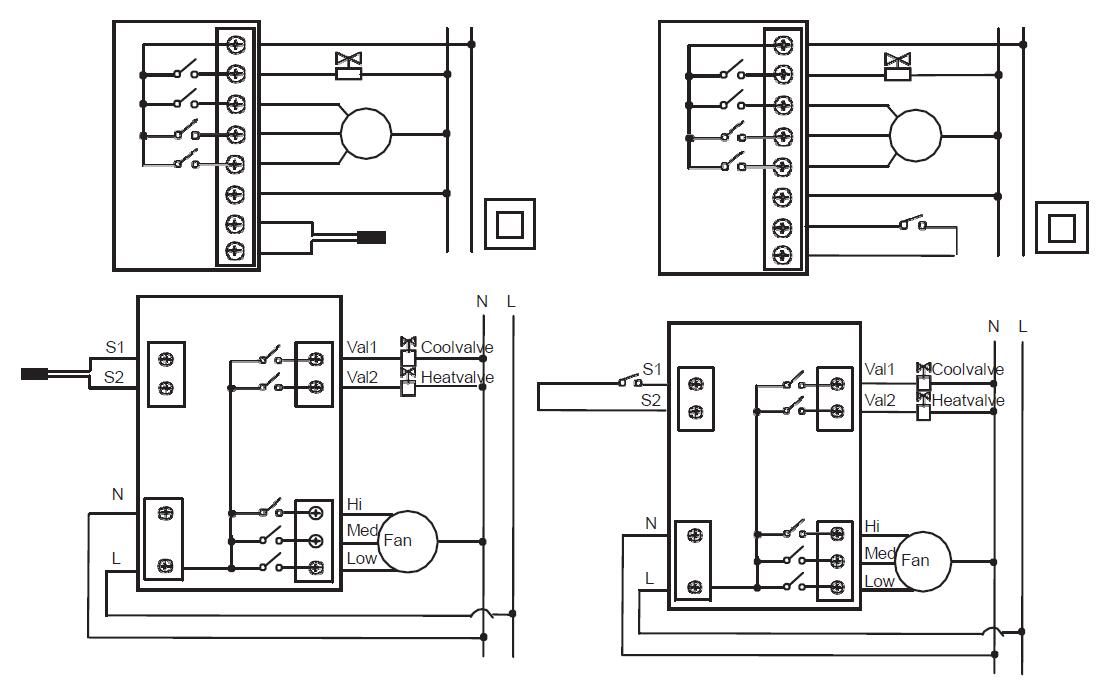
>> Diagrama de cableado


